PROMOTION OF INDEPENDENT LUXURY VILLAS, WITH PRIVATE POOL, IN FINESTRAT, ALICANTE, SPAIN
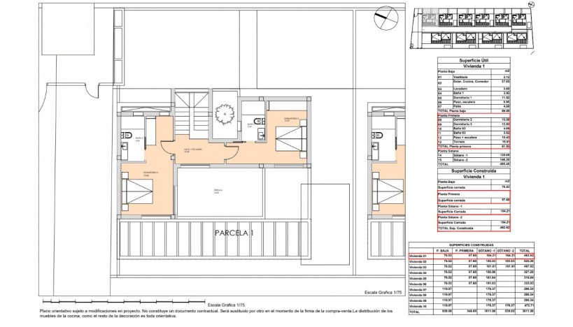
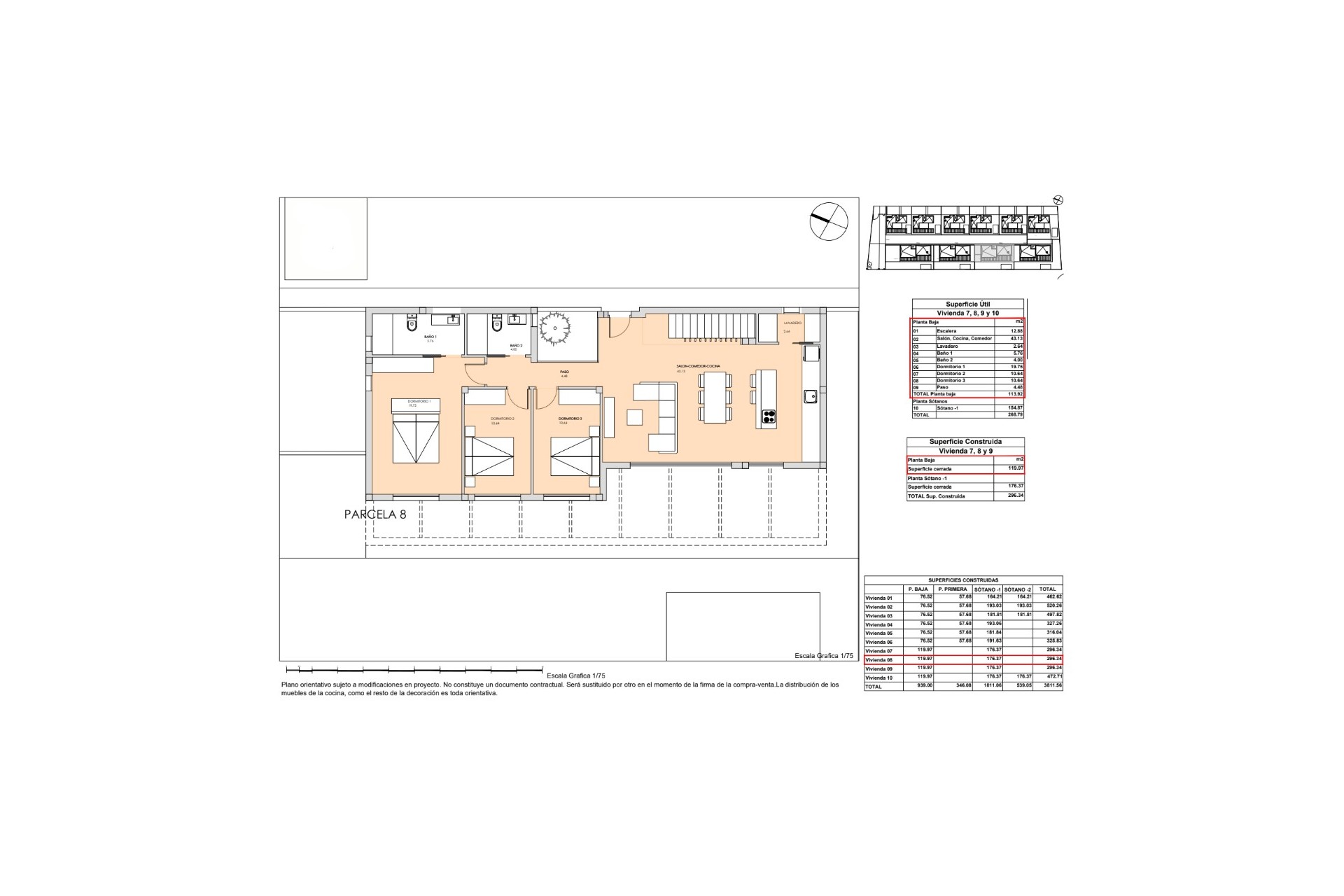
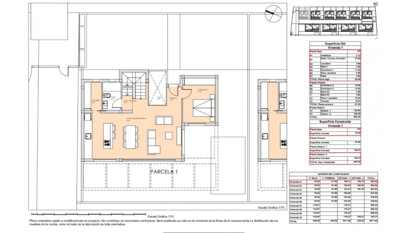
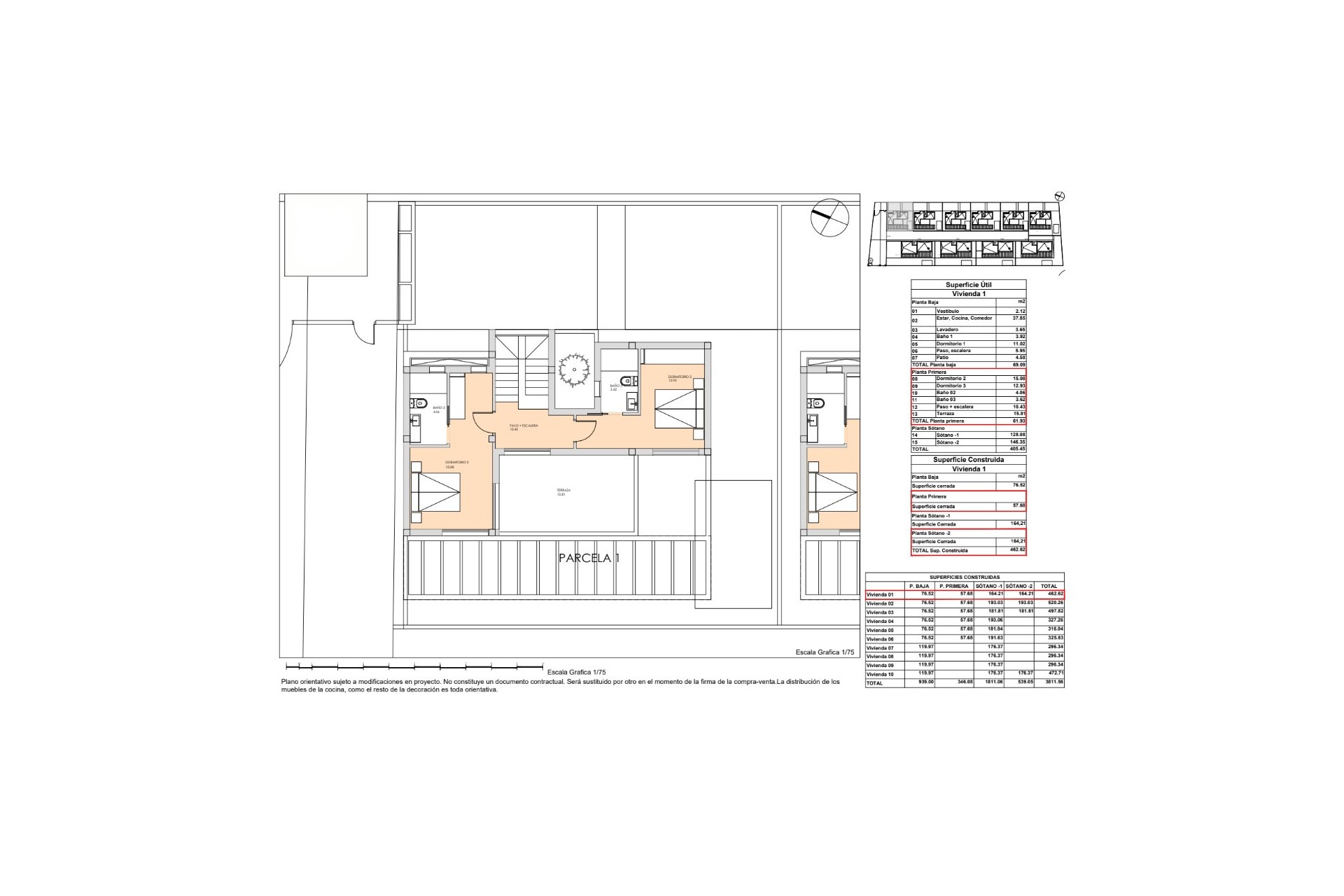
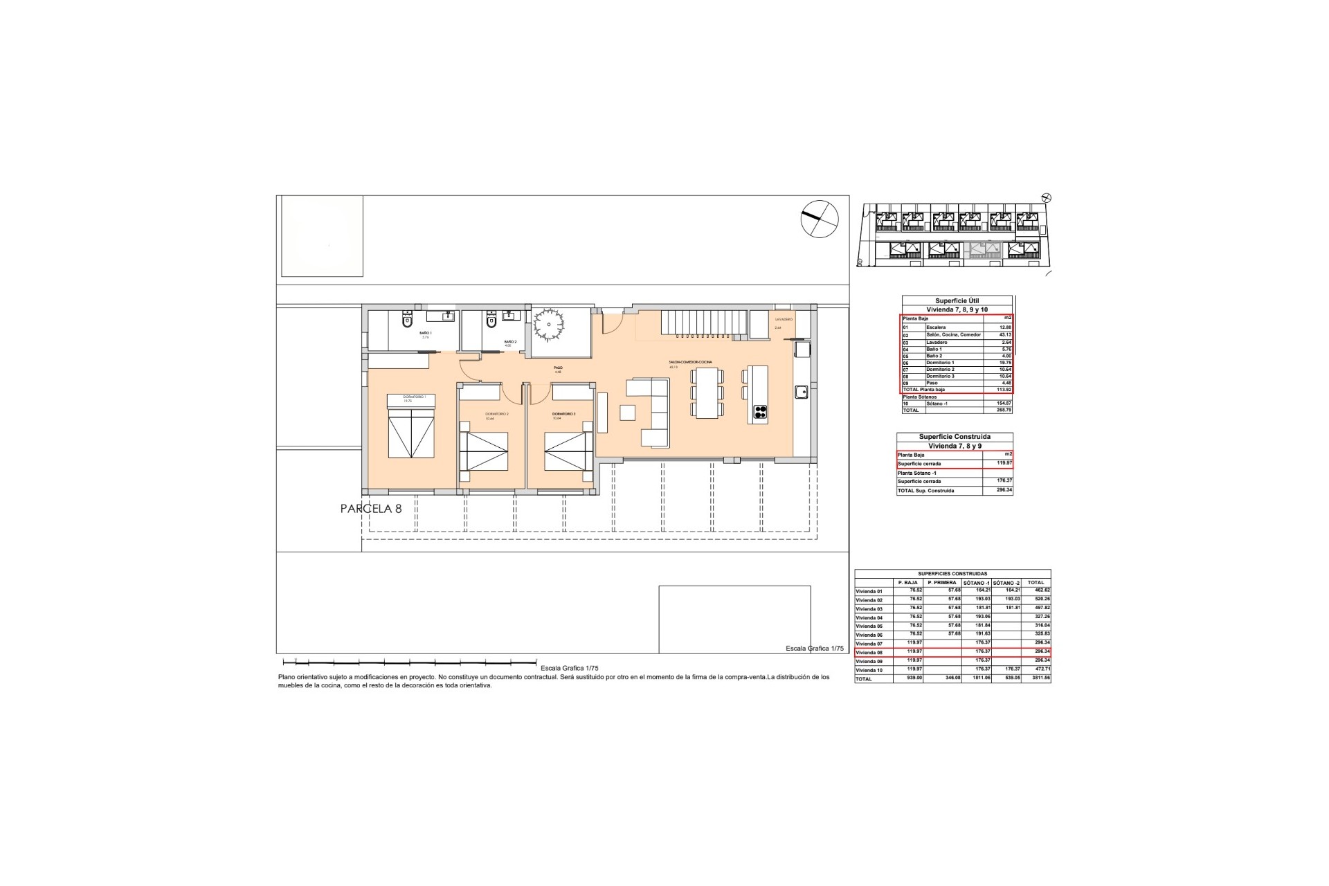
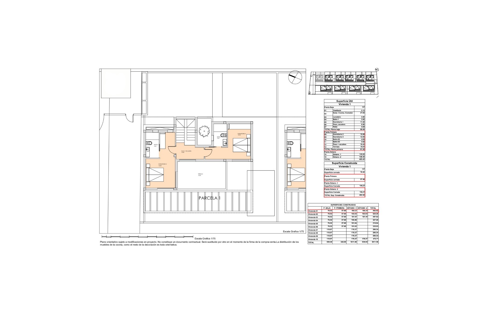
Complex project of 10 beautiful, meticulously designed luxury villas, with a privileged location with views of the sea and the mountains near the Puig Campana golf course, and a short distance from the towns of Finestrat and Benidorm. Two types of housing have been designed with 1 or 2 floors that are distributed in 3 double bedrooms, 2 or 3 full bathrooms, living room with integrated kitchen, laundry room, large terraces and garden, private pool, parking area, 1 or 2 multipurpose basements and in some models a closed underground garage.
Equipped with:
Installation of air conditioning through ducts with machines included.
Fully equipped kitchen with island, furniture and appliances included.
Fully equipped bathrooms.
Fully equipped sliding wardrobes and dressing rooms.
Private pool with lighting and pavement or artificial grass beach area.
Private garden with shower.
Fully customizable multipurpose basement, depending on the model with garage area for vehicle and pre-installation for electric vehicle.
Terrace with pergola
Lighting included.
Pre-installation for solar panels
*Status: under construction
*Delivery date: March 2026
*Villas with 2 floors from €595,000+VAT
*1-story villas from €725,000+VAT
SURROUNDINGS AND DISTANCES:
The complex occupies a privileged location in a natural environment with beautiful views of the sea and the mountains, surrounded by nature and other similar urbanizations. Very well connected, 10 minutes by car from the shopping centers and beaches and the nearby towns of Benidorm and Villajoyosa. 30 minutes from the city of Alicante and its international airport.