FIRST FLOOR APARTMENT WITH LARGE TERRACE, EXCLUSIVELY RESIDENTIAL, NEW CONSTRUCTION, IN BENIJÓFAR, ON THE COSTA BLANCA.
The apartment is part of Waldorf Astoria, an exclusive and modern residential complex located in the center of the beautiful town of Benijófar. With a beautiful and large community area with fully fenced garden areas and a community pool. It is distributed over 3 floors with 30 homes with 2 and 3 bedrooms that offer a wide variety of options on the ground floor, first floor and penthouses. All with a terrace that fills them with Mediterranean light and designed for relaxation and comfort.
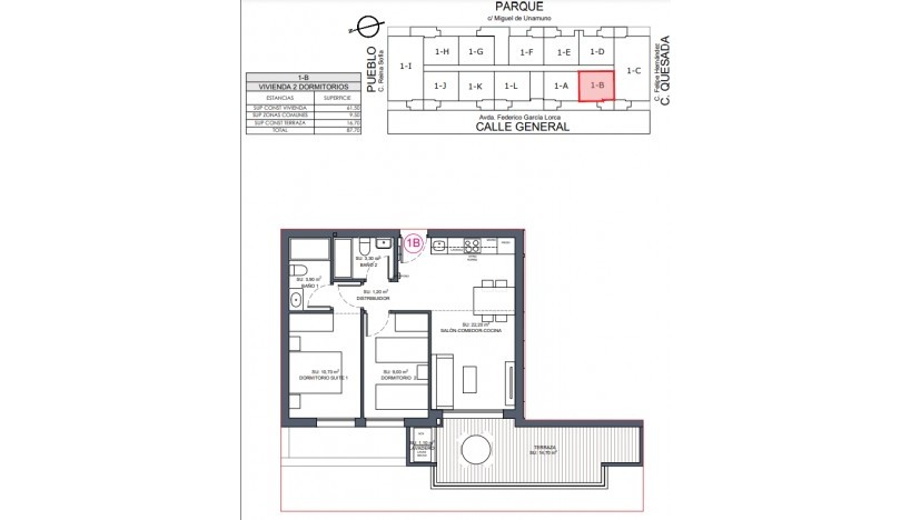
First floor apartment with 2 bedrooms and 2 bathrooms, of which the master bedroom has an en-suite bathroom. Bright and spacious living-dining room with open-plan kitchen that opens to a 17.3 m2 terrace. It also has a separate laundry room. Optional garage space.
EQUIPMENT INCLUDED IN PRICE (AMONG OTHERS):
Fully furnished kitchen equipped with appliances (dishwasher, oven, microwave, ceramic hob and refrigerator).
Complete bathrooms: lights, mirror with LED light, screens and bathroom furniture.
Built-in wardrobes lined with textile, drawers and LED lights inside.
Pre-installation of AA/DC through ducts throughout the house.
Security doors.
Electric blinds.
Artistic porcelain tiles.
Video intercom.
200L aerothermal heater.
Exterior and interior light points, exterior light.
Community pool.
Fenced garden areas.
*Price: €253000
**The price does not include VAT
*** Status: under construction
****Delivery date: December 2025
*****Plans included in photos
SURROUNDINGS AND DISTANCES
The residential is located in the center of the charming town of Benijófar, it is surrounded by golf courses, natural parks and historical sites, it also offers all the services necessary for daily life, supermarket, bakeries, markets, pharmacies, shops, health center and a A short distance away you will find some of those typical Spanish bars where you can enjoy tasty tapas at a low price. Communicated with other towns by an excellent road network. 14 km from the beach. 5Km from Golf Courses. 40 km from Alicante International Airport.