UNA VILLA DE LUJO CON VISTAS AL MAR, VILLA ALTAIR, EN CUMBRES DEL SOL, BENITACHELL, COSTA BLANCA
El diseño de Villa Altair aúna de una forma funcional una arquitectura genuinamente moderna. En su fachada, caracterizada por grandes figuras geométricas creadas a base de líneas rectas. Su jardín, de estilo 100% mediterráneo, presenta muros de piedra que ayudan a integrar el conjunto en el entorno.
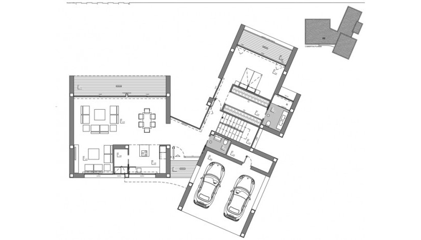
La villa se distribuye en tres plantas. El acceso a la misma se realiza a través de la planta alta, con aparcamiento cubierto para dos vehículos.
En esta misma planta se localiza la zona de día. Una amplia cocina con isla central y equipada con electrodoméstico de primeras marcas, amplio salón y terraza con una impresionante vista al mar Mediterráneo. En esta misma planta, se encuentra la suite principal con su propio baño y terraza privada para disfrutar del buen tiempo y de las vistas al mar desde la privacidad.
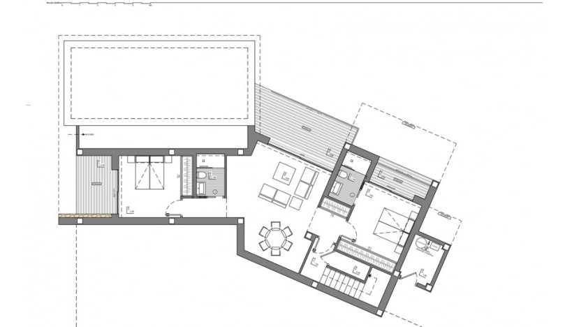
En la planta baja hay dos grandes dormitorios, cada uno de ellos con su propio baño y terraza donde poder disfrutar del aire libre. Hay también un pequeño salón en esta misma planta donde leer, relajarse o meditar.
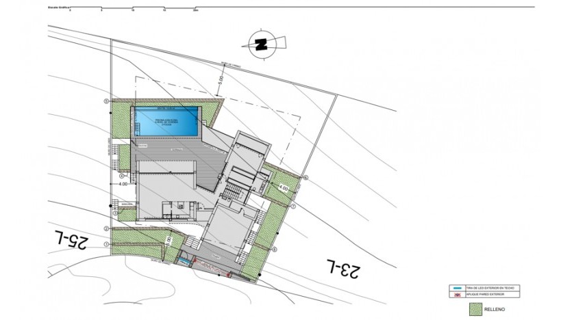
La zona de la terraza coronada por una piscina de diseño infinity le permitirá disfrutar del sol y de unas vistas espectaculares. Un lugar ideal para tomar un aperitivo, disfrutar de una barbacoa con familiares y amigos o para, simplemente, echarse una siesta al sol.
ENTORNO Y SERVICIOS
La villa es parte del residencial Lirios Design situado en la urbanización Cumbre del Sol, una zona consolidada, formada por viviendas independientes, cada una de ellas con su propia parcela vallada, parking, piscina privada y jardín.
Su exclusiva ubicación permite estar viviendo en un residencial tranquilo, silencioso, rodeado de naturaleza, y al mismo tiempo disfrutan de todos los servicios que pone a su alcance una urbanización consolidada como lo es Cumbre del Sol, que cuenta con una zona comercial con supermercado, peluquería, farmacia, bares y restaurantes, colegio internacional Lady Elizabeth School y una diversa oferta deportiva con pistas de tenis y pádel, rutas de senderismo, centro hípico, playa y calas con chiringuitos.