ÁTICO EN PRIMERA LÍNEA DE PLAYA, OBRA NUEVA, EN DENIA, EN LA COSTA BLANCA, ESPAÑA
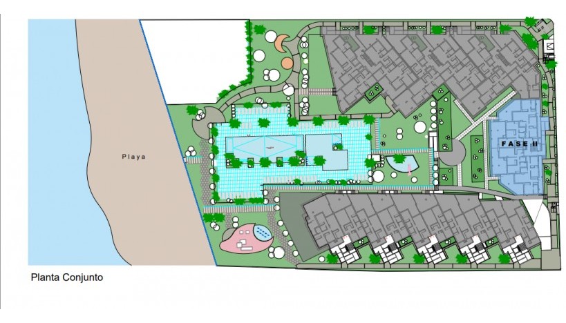
El apartamento es parte de la última fase del bello Residencial L’Estanyo en Denia, ubicado en primera línea de playa. Está compuesto por 100 modernas viviendas distribuidas en 3 bloques, con vistas al mar y construido con primeras calidades. Los apartamentos pueden ser de 2 o 3 habitaciones.
El precio corresponde a ático ubicado en planta tercera, se distribuye en 3 dormitorios y 2 baños, la habitación principal en suite. Luminoso salón comedor cuyo ventanal abre a amplia terraza. Cocina independiente. Todas las viviendas tienen garaje y trastero.
ZONAS COMUNES: cuentan con extensas zonas ajardinadas, parque infantil, parking subterráneo y piscina comunitaria ajardinada para adultos y niños. Aparcamiento
exterior para bicicletas.
EQUIPAMIENTO (entre otros):
•Persianas exteriores motorizadas en dormitorios.
•Puerta de entrada a la vivienda acorazada.
•Cocina con muebles altos y bajos, encimera de Silestone o similar equipada con campana extractora, placa de inducción y horno eléctrico.
•Lavabo con mueble y espejo en todos los baños y aseos.
•Armarios empotrados forrados, distribuida con barra de colgar, cajoneras e iluminación LED interior.
•Producción de agua caliente sanitaria por Aerotermia
•Video Portero Automático de conexión con la entrada principal al conjunto y en el acceso de cada zaguán.
•Preinstalación de aire acondicionado por conductos en salón y dormitorios.
•Urbanización totalmente vallada con amplias zonas comunes ajardinadas, dos piscinas, una de uso infantil.
*Planos Incluidos en fotos
**Estado: en construcción
**Fecha de entrega: julio 2025
***El precio no incluye IVA
ENTORNO, SERVICIOS Y DISTANCIAS
El residencial se encuentra en un entorno privilegiado, frente a la playa de L´Estanyo y a 7 km. del casco urbano. Al sur de Denia podrá descubrir impresionantes calas de gran belleza que quedan escondidas entre los acantilados de la zona más abrupta de la costa de Denia.
Las playas y calas de Denia, gracias a la calidad de sus aguas transparentes, serán el lugar ideal para quienes disfruten del buceo. Podrán observar la flora y fauna marina que nos rodea.
En Denia encontrará a manos todos los servicios necesarios para el diario vivir: mercados, bancos, centro de salud, farmacias, tiendas y además bares y restaurantes dónde se puede disfrutar de excelente gastronomía. En las cercanías se encuentran excelentes campos de golf. A poco más de una hora de los aeropuertos internacionales de Alicante y Valencia.